ул. Дирижабельная, д. 17
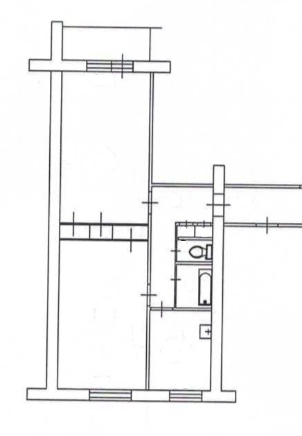
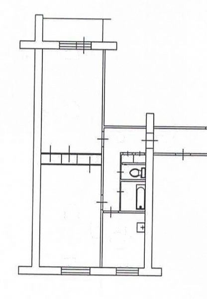
Продается 2-комнатная квартира-распашонка!!! ул. Дирижабельная, д. 17, на 5 этаже 9 этажного кирпичного дома. Общая площадь 57 кв. м с учетом лоджии, 52,7 кв. м без учета лоджии, жилая 34,2 (17,3/16,9) кв. м, кухня 6,7 кв. м, с/у раздельный, большая лоджия 4,3 кв. м. Комнаты изолированные. Квартира в жилом состоянии. Много встроенных шкафов для хранения вещей. Вся мебель и бытовая техника остаются новым владельцам!
Идеальные документы для продажи! Один взрослый собственник. Никто не прописан и не проживает. Приватизация 1997 года. Обременений нет. Перепланировок нет. Свободная продажа. Торг обсуждается.
Дом расположен в центре города. В шаговой доступности школа, детский сад, поликлиника, магазины, пункты выдачи, центральный городской парк. Остановка общественного транспорта рядом с домом. Удобное транспортное сообщение с Москвой: 15 минут пешком или 5 минут транспортом до ж/д станции «Долгопрудная» (МЦД), далее 10-20 минут на электричке до станций метро «Лианозово», «Окружная», «Тимирязевская». Также можно добраться транспортом за 15-25 минут до станций метро «Ховрино», «Физтех», «Алтуфьево», «Сходненская».
Оперативный показ! Звоните, приезжайте!
Свяжитесь с нами
Похожие предложения
